Продажа дома
Московская область, садовое товарищество Малинки,
- 161 м²
- Площадь
- 3
- Этажность
- 9 сот
- Площадь участка
8 500 000 ₽
52 665 ₽ за м²
ID объявления 12482647
Поделиться
Добавить в избранное
Продается 3-х этажный утепленный дом (один этаж мансардный) + подвал на всю площадь дома. Материал стен - пенобетонные блоки. Наружная облицовка из кирпича.
В большой гостиной установлен камин, от которого дом отапливается. Фундамент из железобетона, он же является подвальным помещением.
Дом пригоден для круглогодичного проживания. Есть возможность покупки примыкающего участка 8 соток с домом под отделку!!!
1-й этаж:
- Гостиная.
- Кухня.
- Санузел.
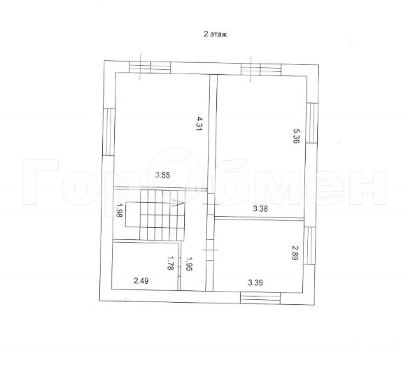
2-й этаж:
- 3 спальни.
- Санузел.
Мансардный этаж:
- 2 спальни.
- Кладовая.
Водоснабжение - из колодца.
Канализация - септик.
Газ - по границе участка.
Участок ровный, прямоугольной формы.
На участке есть второй летний домик (57 кв.м.) и хозпостройка (18 кв.м.) со своими кадастровыми номерами.
На месте домика можно поставить баню, т.к. его состояние - не фонтан.
Земельный участок - возделывается. Установлена теплица.
У всего этого богатства - ОДИН ВЗРОСЛЫЙ СОБСТВЕННИК. ОБРЕМЕНЕНИЙ НЕТ.
В собственности более пяти лет.
Рядом лес, речка, остановка общественного транспорта. Въезд на территорию через пост охраны.
Показы по предварительной договоренности.
ЖДЕМ ВАШИХ ЗВОНКОВ, уважаемые Клиенты и Коллеги!
Дата обновления: 13 февраля 2026